Nous suivre
0

SECTEUR CONTADES - 5-6 PIECES à vendre

Strasbourg (67000)
Réf : 4026

PROX. PARC DES CONTADES

Venez découvrir ce 5-6 PIECES rare sur le marché, alliant confort et élégance à deux pas du Parc des Contades !

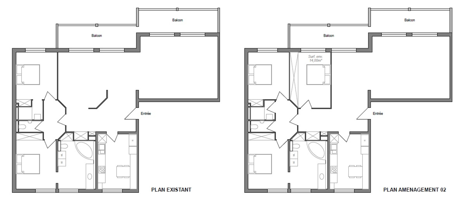
Situé en étage élevé dans un immeuble de standing, au calme, il séduit par ses volumes généreux et son élégance intemporelle ; un vaste salon de 45 m² prolongé d'un balcon filant de 23 m², parfait pour profiter du soleil.

Une cuisine indépendante équipée, poss. trois chambres (dont une suite parentale avec salle de bains), un bureau ouvert sur le séjour (permettant de réaliser une troisième chambre).

Cet appartement de 134,50 m² avec chêne massif, cave spacieuse et une place de stationnement en sous-sol, ne peut que vous séduire à proximité du centre-ville et des transports en commun

Prix du bien 699 000 €
Pièce(s) 6
Chambre(s) 3

Caractéristiques du bien

Caractéristiques Valeurs
Code postal 67000
Surface habitable (m²) 135 m²
Surface loi Carrez (m²) 134,50 m²
Nombre de chambre(s) 3
Nombre de pièces 6
Etage 5
Ascenseur OUI
Nb de salle de bains 1
Nb de salle d'eau 1
Cuisine Séparée
Type de cuisine Equipée
Mode de chauffage Electrique
Type de chauffage Autre
Format de chauffage Individuel
Balcon OUI
Cave OUI
Exposition Sud-Est
Année de construction 1999

Infos financières

Caractéristiques Valeurs
Prix de vente honoraires TTC inclus 699 000 €
Prix de vente honoraires TTC exclus 665 714 €
Honoraires TTC à la charge acquéreur 5 %
Charges 250 €

Bilans énergétiques

DPE GES
Ce bien vous intéresse ?
Fieldset par défaut
Fieldset par défaut
Validation

* Champs obligatoires

Contacter l'agence
Validation
Les informations recueillies sur ce formulaire sont enregistrées dans un fichier informatisé par La Boite Immo agissant comme Sous-traitant du traitement pour la gestion de la clientèle/prospects de l'Agence / du Réseau qui reste Responsable du Traitement de vos Données personnelles.
La base légale du traitement repose sur l’intérêt légitime de l'Agence / du Réseau.
Elles sont conservées jusqu'à demande de suppression et sont destinées à l'Agence / au Réseau.
Conformément à la loi « informatique et libertés », vous pouvez exercer votre droit d'accès aux données vous concernant et les faire rectifier en contactant l'Agence / le Réseau.
Si vous estimez, après avoir contacté l'Agence / le Réseau, que vos droits « Informatique et Libertés » ne sont pas respectés, vous pouvez adresser une réclamation à la CNIL.
Nous vous informons de l’existence de la liste d'opposition au démarchage téléphonique « Bloctel », sur laquelle vous pouvez vous inscrire ici : https://www.bloctel.gouv.fr 
Dans le cadre de la protection des Données personnelles, nous vous invitons à ne pas inscrire de Données sensibles dans le champ de saisie libre
Ce site est protégé par reCAPTCHA, les Politiques de Confidentialité et les Conditions d'Utilisation de Google s'appliquent.